3 Zimmer Wohnung im Obergeschoss

Grundriss:

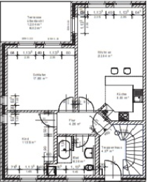
Wohnung Obergeschoss mit Wannenbad

Gut geschnitte, helle und komfortabel ausgestattete Obergeschoßwohnung mit großem Balkon.

Die Wohnung hat in etwa 73 m², umfaßt 3 Wohnräume, ein helles Bad mit Fenster und einen

zentralen Flur.

Der Küchenbereich ist offen gestaltet und in das Wohnzimmer integriert.

 

 

Der große Balkon ist nach Westen ausgerichtet.

 

Durch die aufgelockerte, versetzte Bauweise der Häuser sind die Terrassen und Balkone geschützt und ruhig angeordnet.

 

In dem Keller befinden sich die großzügigen, in der Miete enthaltenene Kellerräume für die Wohnungen und der Heizungskeller. Jedes Haus hat seinen eigenen Zugang zum Keller.

 

Die Wohnung liegt in einem 2,5 geschossigen Wohnhaus mit insgesamt 3 Parteien.

Die Wohnanlage besteht aus 3 aneinandergereihten Häusern.

 

 

Ausstattung

Die hochwertige Ausstattung beinhaltet ein komplett ausgestattetet Wannenbad, Fußbodenheizung,

eine moderne Gas-Brennwert-Heizungstechnik, Solaranlage zur Warmwassererwärmung, für alle Räume Parkett oder Fliesen sowie die kompletten Malerarbeiten.


Die lichtdurchfluteten Räume und die hohen Terrassentüren bieten Ihnen einen unverbauten

Blick ins Grüne.
 

Bausubstanz

 

Baujahr:                          Fertigstellung Ende 2012
Objektzustand:                Neu / Erstbezug

Qualität der Ausstattung:  Gehoben

Heizungsart:                    Gas / Zentralheizung